| |||||||||||||||||||||||||||||||||||||||||||||||||||||||||||||||||||||||||||||||||||||||||||
|
||||
物件基本情報 |
| 所在地 | 神奈川県横浜市神奈川区青木町 |
||||
|---|---|---|---|---|---|
| 交通 | 京急本線 「神奈川駅」 徒歩2分 東急東横線 「反町駅」 徒歩9分 |
||||
| 種別 / 構造 | マンション / RC造(鉄筋コンクリート造) | 主要採光面 | 南 | 所在階 / 階数 | 8階 / 10階 |
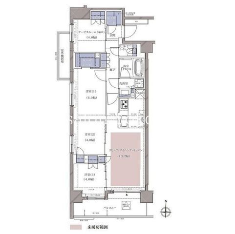
| 築年月 | 2020年5月 | 間取り | 3SLDK( LDK13.2畳/洋室6畳/洋室4畳/洋室4畳/S4畳 ) | 専有面積 | 70.95m2 |
物件詳細情報 |
| 損保 | 要 | 更新料 | なし | 鍵交換代 | - |
|---|---|---|---|---|---|
| 駐車場 | 近隣駐車場 | 契約期間 借家区分 |
2年 定期借家 | ||
| 現況 | 居住中 | 入居可能日 | 2026年5月上旬 | 取引態様 | 媒介 |
| 保証人代行会社 | 0.50ヶ月 エポスカード(RP) 保証料:賃料等の50%(最低2万)、月額保証料:賃料等の1%(更新料無) | 仲介手数料 | バイク置き場 | ||
| 他初期費用 | |||||
設備詳細情報 |
| キッチン |
|
|---|---|
| バス・トイレ |
|
| 住空間 |
|
| 設備・サービス |
|
| 特 徴 | |
| 条件・その他 | 水道:公営 / ペット:可能 / 保証人代行:必加入 |
| コメント | 「 ディームス横濱青木町 」スタッフおすすめ物件♪ |
| 備 考 | お電話でのお問い合わせがスムーズです!お気軽にお電話ください♪ライフサロン横浜「045-227-7015」弊社初期費用カード決済可能! |
| 情報更新日:2026年04月25日 | 次回更新予定日:2026年05月09日 |
こちらの物件の空室状況 |
|
![]() |
![]() |
![]() |
