| |||||||||||||||||||||||||||||||||||||||||||||||||||||||||||||||||||||||||||||||||||||||||||
|
||||
物件基本情報 |
| 所在地 | 神奈川県横浜市神奈川区新町 |
||||
|---|---|---|---|---|---|
| 交通 | 京急本線 「神奈川新町駅」 徒歩1分 京急本線 「仲木戸駅」 徒歩8分 |
||||
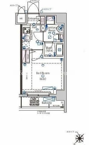
| 種別 / 構造 | マンション / RC造(鉄筋コンクリート造) | 主要採光面 | 北西 | 所在階 / 階数 | 6階 / 9階 |
| 築年月 | 2019年2月 | 間取り | 1K( 洋室6畳 ) | 専有面積 | 20.37m2 |
物件詳細情報 |
| 損保 | 不要 | 更新料 | あり 1.5ヶ月 | 鍵交換代 | - |
|---|---|---|---|---|---|
| 駐車場 | 近隣駐車場 | 契約期間 借家区分 |
2年 普通 | ||
| 現況 | 居住中 | 入居可能日 | 2026年5月中旬 | 取引態様 | 媒介 |
| 保証人代行会社 | 0.50ヶ月 初回契約時:総賃料50%、[JRAG:1万円/年(月330円)] [カーサ:月額保証料1%][:月額保証料1%][ベルテックス保証:月額保証料1%]※外国籍の方は敷金1ヶ月追加となります。 | 仲介手数料 | バイク置き場 | ||
| 他初期費用 | |||||
設備詳細情報 |
| キッチン |
|
|---|---|
| バス・トイレ |
|
| 住空間 |
|
| 設備・サービス |
|
| 特 徴 | |
| 条件・その他 | ガス:都市 / 水道:公営 / 事務所:不可 / ペット:不可 / 保証人代行:必加入 |
| コメント | 「 ラヴェニール東神奈川 」スタッフおすすめ物件♪ |
| 備 考 | お電話でのお問い合わせがスムーズです!お気軽にお電話ください♪ライフサロン横浜「045-227-7015」弊社初期費用カード決済可能! |
| 情報更新日:2026年04月17日 | 次回更新予定日:2026年05月01日 |
こちらの物件の空室状況 |
|
![]() |
![]() |
![]() |
