| |||||||||||||||||||||||||||||||||||||||||||||||||||||||||||||||||||||||||||||||||||||||||||
|
||||
物件基本情報 |
| 所在地 | 神奈川県横浜市南区中村町1丁目 |
||||
|---|---|---|---|---|---|
| 交通 | 横浜市営地下鉄ブルーライン 「伊勢佐木長者町駅」 徒歩9分 JR京浜東北・根岸線 「石川町駅」 徒歩10分 |
||||
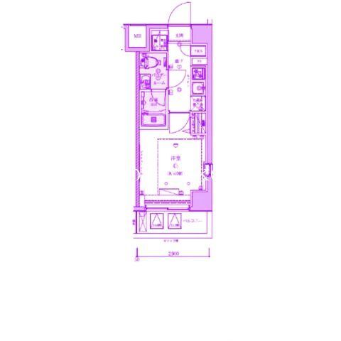
| 種別 / 構造 | マンション / RC造(鉄筋コンクリート造) | 主要採光面 | 北西 | 所在階 / 階数 | 3階 / 7階 |
| 築年月 | 2024年12月 | 間取り | 1K( K2畳/洋室6畳 ) | 専有面積 | 21.17m2 |
物件詳細情報 |
| 損保 | 不要 | 更新料 | あり 1.5ヶ月 | 鍵交換代 | - |
|---|---|---|---|---|---|
| 駐車場 | 近隣駐車場 | 契約期間 借家区分 |
2年 普通 | ||
| 現況 | 空家 | 入居可能日 | 即入居可 | 取引態様 | 媒介 |
| 保証人代行会社 | 0.80ヶ月 初回契約時:80%、月額:1%、最低月額保証料1000円〜+決済サービス料550円税込 | 仲介手数料 | バイク置き場 | ||
| 他初期費用 | |||||
設備詳細情報 |
| キッチン |
|
|---|---|
| バス・トイレ |
|
| 住空間 |
|
| 設備・サービス |
|
| 特 徴 | |
| 条件・その他 | ガス:都市 / 水道:公営 / 2人入居:可 / ペット:可能 / 保証人代行:必加入 |
| コメント | 「 リヴシティ横濱石川町 」スタッフおすすめ物件♪ |
| 備 考 | お電話でのお問い合わせがスムーズです!お気軽にお電話ください♪ライフサロン横浜「045-227-7015」弊社初期費用カード決済可能! |
| 情報更新日:2025年12月08日 | 次回更新予定日:2025年12月22日 |
こちらの物件の空室状況 |
賃貸マンション 7.9万円
石川町駅 徒歩9分
1K(21.73u)
「 リブリ・石川町 」スタッフおすすめ物件♪
賃貸マンション 7.3万円
伊勢佐木長者町駅 徒歩3分
1K(19.84u)
「 KDXレジデンス横浜関内 」スタッフおすすめ物件♪
賃貸マンション 7.85万円
石川町駅 徒歩4分
1K(20.00u)
「 グランド・ガーラ横濱元町 」スタッフおすすめ物件♪
賃貸マンション 7.3万円
伊勢佐木長者町駅 徒歩3分
1K(20.10u)
【伊勢佐木長者町駅】徒歩3分!【関内駅】徒歩7分!
|
![]() |
![]() |
![]() |
